这是一个关于无锡盛业大厦封顶的新闻标题,结合了地点、事件和意义。以下是几个可能的英文翻译选项,侧重点略有不同:
"Option 1 (Standard & Direct):"
> "New Financial Landmark Rises on Taihu Lake: Wuxi Shengye Tower Officially Completes Construction."
"太湖之畔 (Tài Hú zhī pàn):" "On Taihu Lake"
"崛起 (Jué qǐ):" "Rises", " Emerges"
"金融新地标 (Jīn Róng xīn dì biāo):" "New Financial Landmark"
"无锡盛业大厦 (Wúxī Shèngyè Dàshà):" "Wuxi Shengye Tower" (Common English name)
"正式封顶 (Zhèngshì fēng dǐng):" "Officially Completes Construction", "Formally Tops Out"
"Option 2 (Slightly more emphasis on significance):"
> "Wuxi Shengye Tower Tops Out: A New Financial Landmark Takes Shape by Taihu Lake."
Uses "Tops Out" which is common construction terminology.
"Takes Shape" emphasizes the completion.
"Option 3 (More concise):"
> "Wuxi Shengye Tower: Financial Landmark Complete by
相关内容:
2025年4月13日,随着最后一方混凝土浇筑完成,由AUD设计的无锡盛业大厦主体结构正式封顶。这座总建筑面积达5.5万㎡的复合型商办综合体,历经三年精心营造,现已矗立于无锡经开区金融城核心区,成为太湖湾科创带上又一里程碑式的地标建筑。




自2022年通过国际竞赛中标以来,AUD设计团队以"现代金融与自然共生"为核心理念,将无锡的山水意境融入建筑设计。建筑形态通过简洁利落的几何切割与流畅线条,既体现金融行业高效精准的特质,又暗合"流动增值"的行业属性。设计同时呼应盛业集团"时来运转"的企业愿景,以现代建筑语言诠释传统吉祥寓意,打造兼具功能性与象征意义的总部形象。

无锡盛业大厦毗邻京杭大运河、太湖水域,南面享有绝佳景观,为了使景观最大化,建筑团队与结构专业紧密协同,将塔楼设计为偏核心筒设计,以最大限度利用进深让塔楼享有更丰富的景观视野。在外立面设计上,塔楼南北立面以竖向玻璃幕墙线条营造石纹肌理,东西侧则通过隐框幕墙形成流水般的横向延展。这种"刚柔并济"的立面语言,在阳光下呈现波光粼粼的视觉效果。
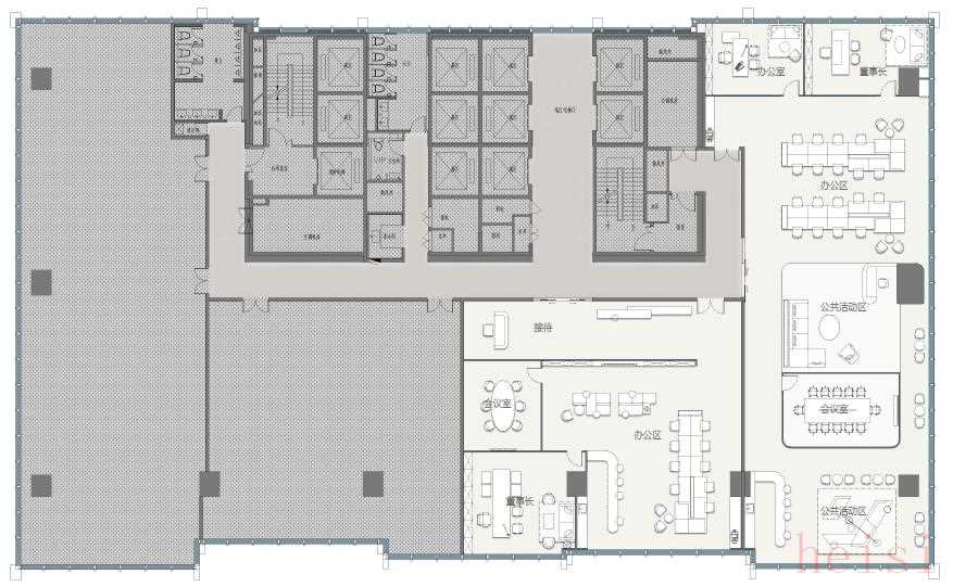
办公大堂平面图
标准层平面图立体高效的智慧空间体系
为满足金融科技企业的功能需求,AUD设计了双区垂直交通系统:- 塔楼划分为高低两区,各配置5部专属电梯,提升高峰时段运力
- 地下2层至商业裙房设置穿梭梯,实现办公与商业人流的高效分流
- 33层屋顶花园与3层共享会议中心,构成"垂直城市客厅"

商业裙房采用无界滨水界面设计,通过开放式廊道串联银行网点、证券机构及高端餐饮等未来业态,使室内外景观与尚贤河湿地相互渗透,强化建筑与自然的共生关系。

室内设计则以现代简约风格为基调,大堂地面采用金属嵌条勾勒出流畅的线条,与天花线性灯带相呼应,营造出"上善若水"的动态视觉效果。核心筒选用米灰岩板打造富有雕塑感的造型,通过简洁利落的几何形态展现现代建筑的精致质感。


可持续技术的深度整合是另一大亮点:
- 高性能中空玻璃幕墙配合智能遮阳系统,降低30%空调能耗
- 屋顶花园与立体绿化构成"城市绿肺",改善微气候
- 雨水回收系统用于景观灌溉,实现资源循环


随着主体结构封顶,项目即将进入幕墙安装与室内精装阶段,预计于2026年全面竣工。本项目建成后,未来不仅是盛业集团"产业互联网+数字金融"战略的空间载体,也是AI制造、研发聚集地。这座融合金融科技、数字产业和生态智慧的总部大厦,将重塑无锡城市天际线,向世界讲述长三角的当代商业故事。



资料来源、版权所有:AUD设计
